obvita Kompetenzzentrum, St.Gallen

obvita Kompetenzzentrum, St.Gallen

obvita Immobilienservice, St.Gallen

Mayer Architektur AG, St.Gallen

ca. 1200 m²

Selbstbedienungsrestaurant / Cafeteria, Bankettsaal

120 pro Tag

120 (Restaurant); 50 (Foyer); 100 (Saal)

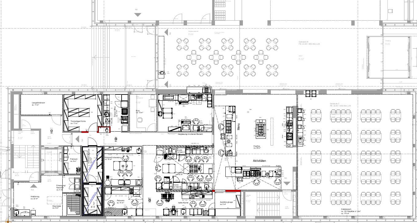
Produktionsküche inkl. Patisserie, Abwäscherei Freeflow Restaurant inkl. Cafeteria, Anlieferung und Entsorgung

Unsere Leistungen

  • Strategische Arealberatung Gastronomie
  • Gastronomiefachplanung SIA Phasen 31-41 / gemäss VSGG
  • Zusatzmandat Konzept- und Planstudie / Optimierung Küche im Bestand

Zum Projekt

Ziel war die Schaffung eines in der Ostschweiz einzigartigen Kompetenzzentrums für blinde und sehbehinderte Menschen. In diesem neuen Zentrumsbau auf dem bestehenden Areal in St. Gallen sollen alle Angebote und Dienstleistungen für Menschen mit Seheinschränkungen unter einem Dach angeboten werden.
Herzstück des geplanten Zentrumsbau ist die Gastronomie mit SB-Restaurant/ Cafeteria und Serviceleistungen für das Auditorium. Die Produktionsküche inkl. Rüsterei dient zusätzlich als „Mutterbetrieb“ für die Belieferung von Lebensmittel und Getränken für das Pflegeheim (Anlieferbetrieb). 


Ausgangslage
Die grösste Herausforderung bestand darin die Verpflegungsdienstleistungen der Gastronomie wie Mitarbeiterverpflegung, Verpflegung Alterszentrum und Verpflegung Arbeitswerkstätte möglichst effizient zu gestalten. Aufgrund der Weitläufigkeit des Areals mussten in der strategischen Beratung die richtigen Standorte von Produktionsküche und Speiseräume eruiert werden. Somit musste die Logistik des Gesamtareals wie Anlieferung und Entsorgungssituation mitberücksichtigt werden. 


Umsetzung
Aus Kostengründen wurde die bestehende Küche an ihrem Standort belassen und die Planung der promaFox AG zurückgestellt und nicht umgesetzt.



Related projects

obvita Kompetenzzentrum, St.Gallen

obvita Kompetenzzentrum, St.Gallen

Gemeinschaftsgastronomie / Care Gastronomie

Machbarkeitsstudie Universitätsklinik Balgrist, Zürich

Machbarkeitsstudie Universitätsklinik Balgrist, Zürich

Gemeinschaftsgastronomie / Care Gastronomie