Gastronomie Bahnhofstrasse 3, Zürich

Gastronomie Bahnhofstrasse 3, Zürich

Genossenschaft zum Baugarten

Fanzun AG

Studio Märkli AG

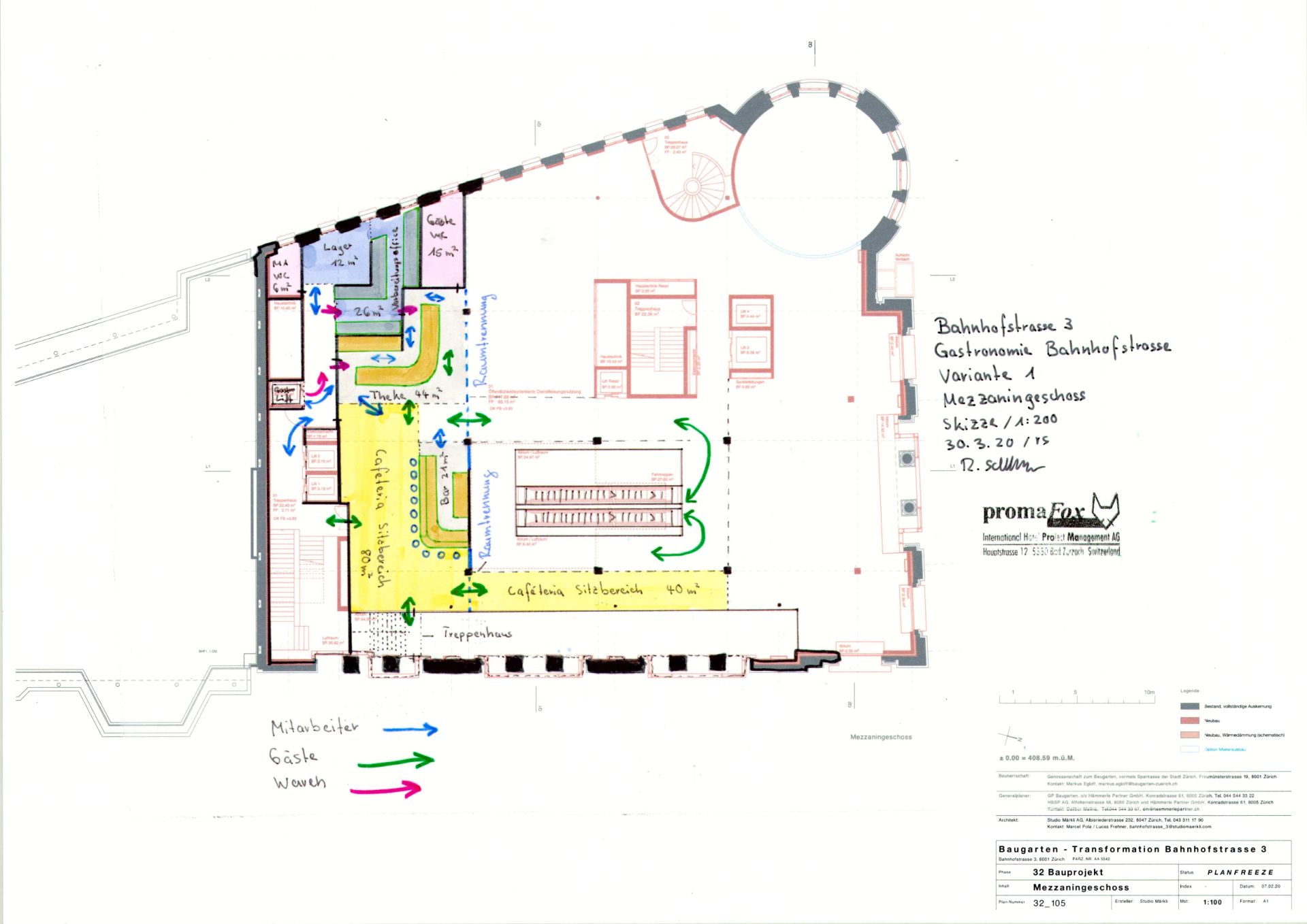
424m² (Variante 1) 360m² (Variante 2)

Cafe / Bar, Bistro und Restaurant

100 (innen), 50-70 (aussen)

Fertigungsküche / Office inkl. Abwäscherei Ausgabetheken, Gasträume Sozial- und Lagerräume

2020

Unsere Leistungen

  • Konzept- und Planstudie in 2 Varianten - SIA Phase 21 / gemäss VSGG

Ausgangslage

Die Liegenschaft an der Bahnhofstrasse 3 in Zürich wird im Auftrag des Bauherrn "Genossenschaft zum Baumgarten" komplett umgebaut. Dabei wird das Gebäude im Innenbereich komplett neu aufgebaut. Die denkmalgeschützte Fassade muss vollständig erhalten bleiben. Im Zuge der Sanierung wurden nun auch verschiedene Nutzungsmöglichkeiten geprüft. Gemäss Nutzungskonzept soll das Gebäude ausschliesslich Büro- und Geschäftsräume, sowie Retailgeschäfte (im Mieterausbau) enthalten. Um eine vielseitige Nutzung und damit auch eine zusätzliche Attraktivität zu erhalten, soll das Gebäude auch eine Gastronomie beherbergen.

Zielsetzung

Ziel war es, verschiedene Gastronomievarianten (Café/Bar, Bistro, Restaurant) aufzuzeigen, die vorhanden Flächen zu prüfen und die entsprechenden Rahmenbedingungen aufzuzeigen.

Herausforderung

Aufgrund der geplanten Position der markanten Rolltreppanlage bestand die grösste Herausforderung in der Flächenbestimmung für eine zukünftige Gastronomie. Diese soll rentabel und langfristig geführt werden können. Um dieses Ziel zu erreichen, muss die Gastronomie von aussen, wie auch innerhalb des Gebäudes klar wahrgenommen werden. Die internen Verkehrsflüsse, aber auch das Marktpotential für zukünftige Betreiber wurden somit intensiv in der Planung berücksichtigt.

Lösung

Die vorhanden Flächen und die entsprechenden Rahmenbedingungen wurden in einem konzeptionenellen Layout (Varianten) aufgezeigt. Jede dieser, von promaFox AG erarbeiteten Varianten, beleuchtete die jeweiligen Vor- und Nachteile. Ein spezielles Augenmerk wurde dabei auf die ökonomischen Erfolgschancen eines zukünftigen Betreibers gelegt. Daraus erfolgte die erfolgreiche Festlegung der Ausprägung, Grösse und Standort der Gastronomie innerhalb des Gebäudes. 

Related projects

Gastronomie Bahnhofstrasse 3, Zürich

Gastronomie Bahnhofstrasse 3, Zürich

Machbarkeitstudie / Konzept- und Planstudie